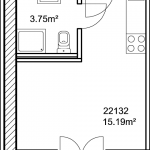
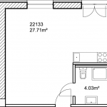
Gebäude 2
Gebäude 2 im Campus Energy Bielefeld liegt parallel zum Gebäude 1 und teilt sich mit ihm einen Platz mit schönen Sitzgelegenheiten. Das Haus ist von Grün umgeben. Alle Wohnungen mit Erdgeschoss haben eine Terrasse. Hier findet Ihr sowohl Einzelappartements als auch WG-geeignete Wohnungen.
















